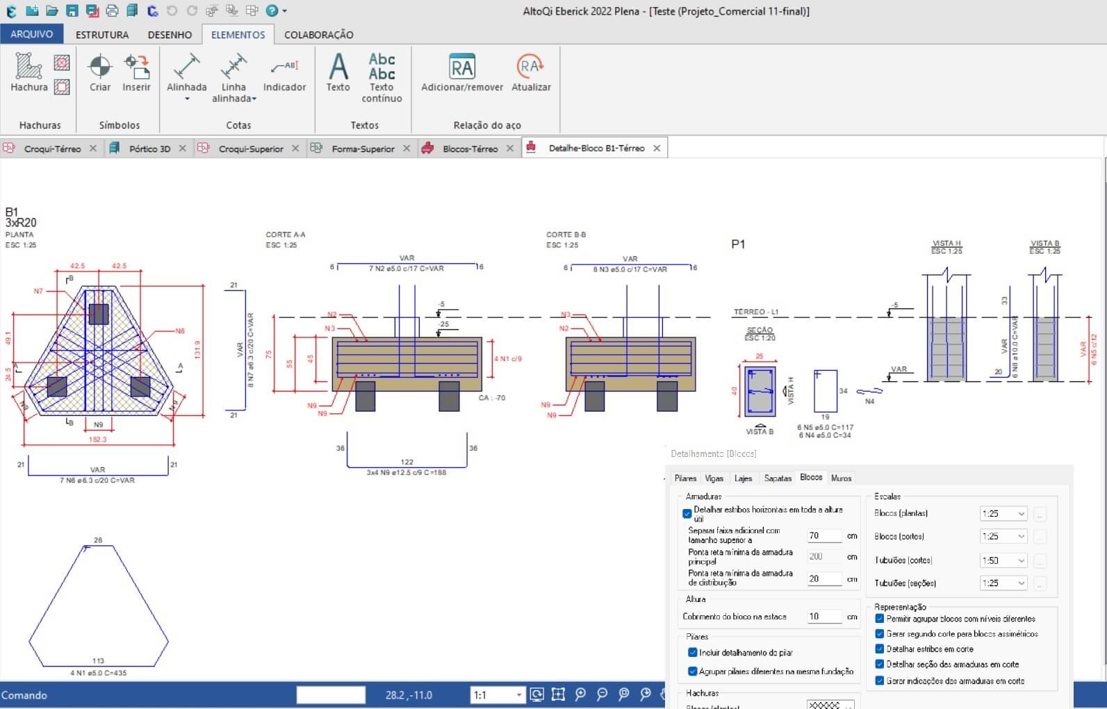
Foi realizada uma série de melhorias no programa com o intuito de facilitar o entendimento sobre resultados e detalhes de blocos de uma estaca, como: informação colocada na janela de dimensionamento de blocos (não mais a quantidade de barras, e sim de estribos), ajustes nos relatórios (neste caso, também para blocos de duas e três estacas) e inclusão de indicação dos estribos nos detalhamentos. Além disso, foi desenvolvida uma nova configuração para aplicar um espaçamento máximo nos blocos de uma estaca.

Teste o AltoQi Eberick gratuitamente e descubra como acelerar seus projetos estruturais com segurança e precisão.